「一屋多用,越住越大」130㎡超全經驗打造高顏值儲物
來源:愛空間科技(北京)有限公司 日期:2022-11-07 14:11:44
- 詳細介紹
大關先生經營著一家影視廣告公司,在工作中一直做著很費腦筋的事情,有了孩子之后,下班更是身心疲憊。希望能通過“家”這個放松、舒適的載體,很好地將生活與工作進行平衡。
“日式的裝修風格更能感受生活中的美和善”,在生活方式中,大關先生重視的主題是:簡單。所以確定了日式風格,將餐廳邊的小房間打造成休閑區,用日式傳統木材呈現家中現代、溫馨的感覺,再整體以最簡潔的色調、傳統的形式,創造了一個無限多樣性居所空間。
房屋信息:
面積:130㎡
戶型:三室兩廳兩衛
裝修風格:日式
常住人口:3人
裝修成本:19萬
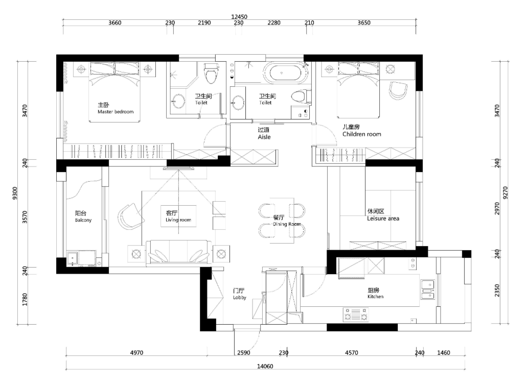
平面布局圖
通過方案設計來看,最主要的改動有這么幾處。
1、借用了一些廚房和陽臺的空間,在玄關隔出個雜物間。
2、舍棄餐廳邊的小房間,打造成休閑區,開放式設計讓空間更通透敞亮。
3、通過電視墻延伸的方式,來遮擋進門就是衛生間的尷尬,以及增加進門后的視覺美感。
玄關
玄關左側是嵌墻的收納柜,鞋子、包包等收納于無形。右側的臺階小凳別致有趣,日常用作換鞋坐凳再適合不過。旁邊設置了一道門將雜物間“隱藏”起來,是不是很妙?
而對面的白墻,則是電視墻后延伸出來的,雖然墻面什么造型都沒有做,但也完全符合屋主的需求。
客廳
客廳用原木元素裝飾吊頂,讓整個家居更帶有親切感和溫情,不同空間的吊頂風格不同,視覺上很有新意的享受,仿佛滿屋子都有原木香的彌散。
灰色布藝沙發揮灑出沉穩的氣息,鏤空的扶手顯得很清爽,讓客廳有種“湖心小筑”的感覺,這份柔軟與舒適讓居住者也跟著慵懶起來。
電視柜的款式帶有現代藝術設計的味道,呈現的是多功能收納,與黑色液晶屏幕的電視相搭配有一種經典的優雅。
最寧靜美好的生活,莫過于一家人其樂融融相聚于自在舒適的客廳,打趣笑罵,此時電視機里傳來熱鬧的節目聲,把自己帶入電視角色或喜或悲,是生活的味道~
靜謐中總會有一些可愛的小事物不經意間觸動人的內心,就像這簡單的花瓶擺件,你可以把它當做裝飾,盡情欣賞它給客廳增添的優雅美感,也可以把它當做伙伴,陪伴和見證這一個家庭的幸福時光~
餐廳
原木色的餐桌椅搭配日式竹編燈罩,現代家居的簡練與日式風韻的自然交織,溫馨的情調不知不覺融化在整個空間里。
餐邊柜很好地與電視柜相呼應,可收納也可擺放裝飾品。干凈利落的線條,鋪陳營造出一種素凈淡雅的治愈氛圍。
經過餐廳往里走,就是臥室,空間以序推進,以深藍色半簾稍作阻隔,神秘,也很通透流暢,進出都有一種日式復古居住方式的代入感。
休閑區
餐廳與休息區之間,小面積的木柵欄似隔非隔,空間層次分明,不顯壓抑。榻榻米的設計提供了很大的儲物空間。
相比于嚴謹的用桌椅板凳填充休閑區域,業主夫婦更喜歡席地而坐的自在和隨意,一卷涼席、兩個蒲墊、一方矮桌,可以最大限度地放松身心。
簡易的半高書架很好地收納書籍,也可當做置物的邊角柜。
柜上的紫銅香爐古樸典雅,意境悠長,整個休閑空間禪意十足。
兩幅意境深遠的水墨畫帶有讓人凝神靜心的魔力,仿佛置身空靈的自然山水中,周身一切都與心神相互感應,妙義無窮。
精致的琉璃小盞盛上清亮的茶湯,是男業主品位生活最直接的方式。
廚房
白色的廚房特別整潔大氣,灰色的大理石地磚沉淀了中庸氣息,且實用性很強。原木的置物臺帶來了清新和暖意,做飯時也不由得內心感到柔軟。
精致的生活從美味的飲食開始。女業主是一位美食愛好者,特別喜歡精美小巧又的廚房用具,廚房整體的白色調有很好的包容性,無論與何種形狀、顏色的用具都很搭。
主臥
理想的睡眠環境,當屬自然純粹,有滿滿的歸屬感。主臥一切用具都是保留了原木純天然的紋理,簡單的陳設,引人還原最本真的自己,品讀最深處的心靈。
輕紗+淺灰色布藝的窗簾飄逸靈動,點綴素雅的空間。床頭置一盞小臺燈,皎潔純美,仿佛訴說著來自光陰的故事。
主衛
主衛日式小清新風,淋浴區的原木地板營造復古的潮流,帶有防滑效果,增加自然韻味。玻璃門進行干濕分離,整潔易打理。
兒童房
粉色的公主城堡,帶你置身愛麗絲仙境~。
房間主體仍是原木色,與夢幻粉相搭毫不違和,反而帶來滿滿的溫暖和煦的氣氛,當然深受甜美可愛的小公主的喜愛啦!
床尾的衣柜和展示柜一體,可以存儲小公主衣服,也可以當做書架使用,喜愛的玩具也可以擺放進來,甚是有趣可愛。
房間硬裝設計很百搭,床上軟裝和粉色窗簾部分可以置換,可隨著小公主的成長和喜好變換。
次衛
次衛靠窗的浴缸縱深配比很好,可以提供很舒適愜意的享受。
淋浴區設計風格與主衛相似,考慮到小孩子洗澡的安全性,增加了扶手。白色臺面的洗手臺和洗手盆顯得干凈衛生,滿滿的清涼感~
陽臺
鐘情于日式風格的人,身上大多帶有寫意派的影子。陽臺雖窄,但也可以被裝點成為一幅自然的畫卷。一景小小的枯山水,竹影搖曳,灰石鋪灑,詩韻悠遠,如何能叫人不愛?
